︎︎︎
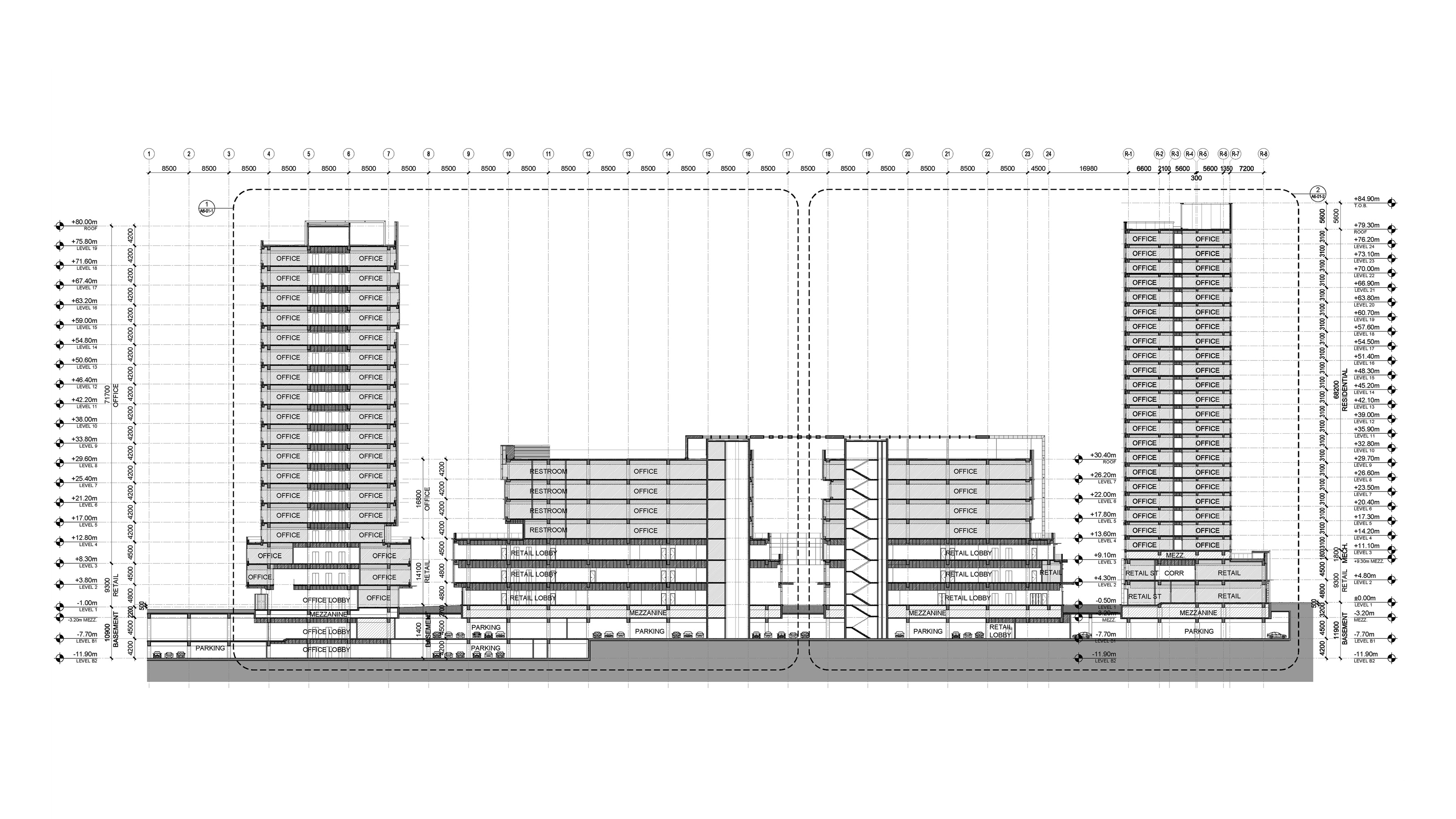
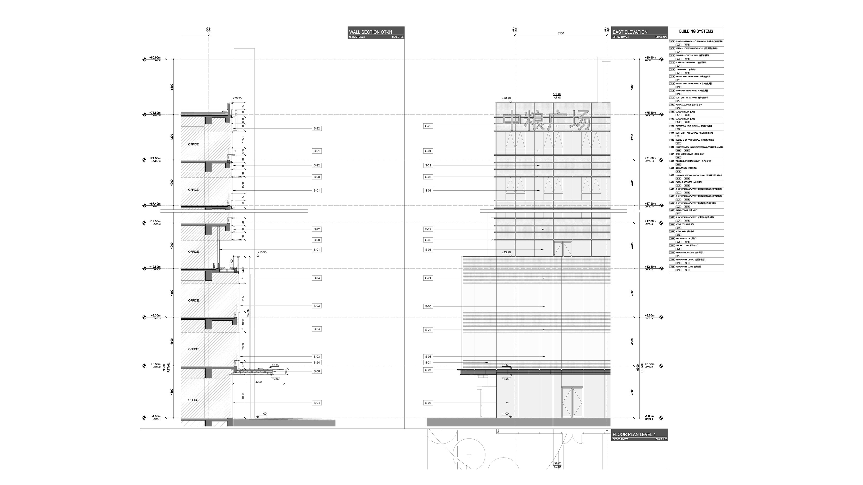
SHENYANG COFCO
MIXED USE
Location
Shenyang, China
Area
149000 m2
Client
Laguarda Low Architects LLC
USA
We developed
Schematic Design - Design Development
Exterior Package
Status
Built, 2014
MORE PROJECTS
︎︎︎
HOME
OUTSOURCING
BIM
ONGOING
LARGE SCALE
DETAILING
PROJECTS
MIXED USE
RETAIL
OFFICE
RESIDENTIAL
ARCHITECTURAL DRAFTING
ARCHITECTURAL BIM
TEAM & CONTACT
ABOUT
CONTACT US
INSTAGRAM
FACEBOOK
LINKEDIN
©
ESTUDIO SET 2022