︎︎︎
EON TIME
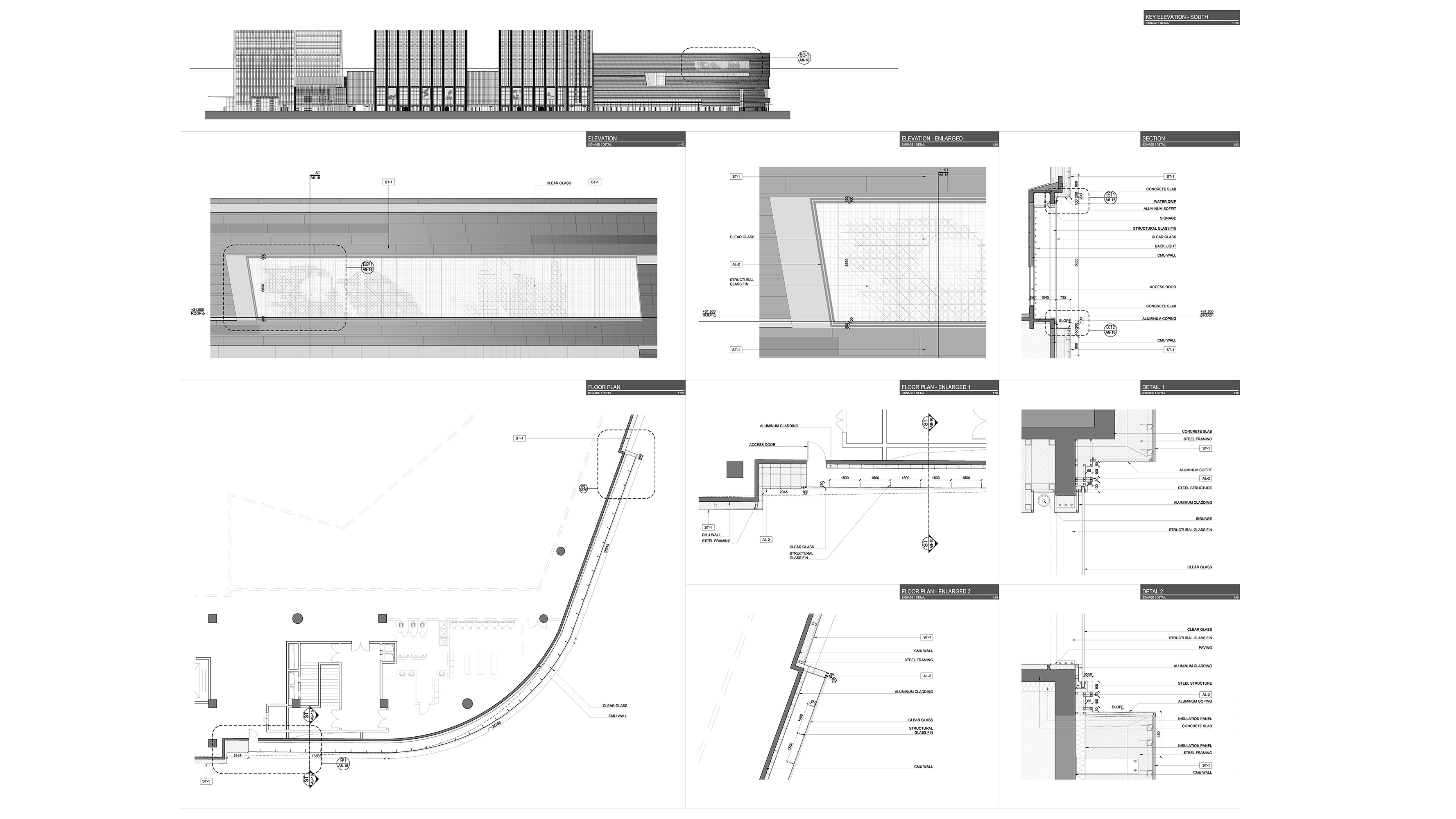
MIXED USE
Location
Hohhot, China
Area
420000 m2
Client
Laguarda Low Architects LLC
USA
We developed
Design Development
Exterior & Interior Package
Status
Unbuilt, 2012
MORE PROJECTS
︎︎︎
HOME
OUTSOURCING
BIM
ONGOING
LARGE SCALE
DETAILING
PROJECTS
MIXED USE
RETAIL
OFFICE
RESIDENTIAL
ARCHITECTURAL DRAFTING
ARCHITECTURAL BIM
TEAM & CONTACT
ABOUT
CONTACT US
INSTAGRAM
FACEBOOK
LINKEDIN
©
ESTUDIO SET 2022